ВЛАДИМИР НАЗОР

СТАНБЕНО-ДЕЛОВЕН ОБЈЕКТ

Проектот Владимир Назор претставува современ станбен објект за квалитетно домување, лоциран во општина Центар, на ул. Владимир Назор.12 Со својата архитектура, висока естетика и имплементирани технолошки решенија, ќе претставува модерен урбан белег. Објектот е сместен во близина на Клиничкиот центар - Мајка Тереза. Во непосредна близина се наоѓаат институции од јавен карактер, големи трговски центри, образовни институции.

1. Фаза

Проектирање

Завршена

2. Фаза

Карабина

Во процес

3. Фаза

Завршни фази

Во процес

4. Фаза

Клуч на рака 2022

Понуда зграда ВЛАДИМИР НАЗОР

Избери го твојот стан

Површина
Tераса
Паркинг место

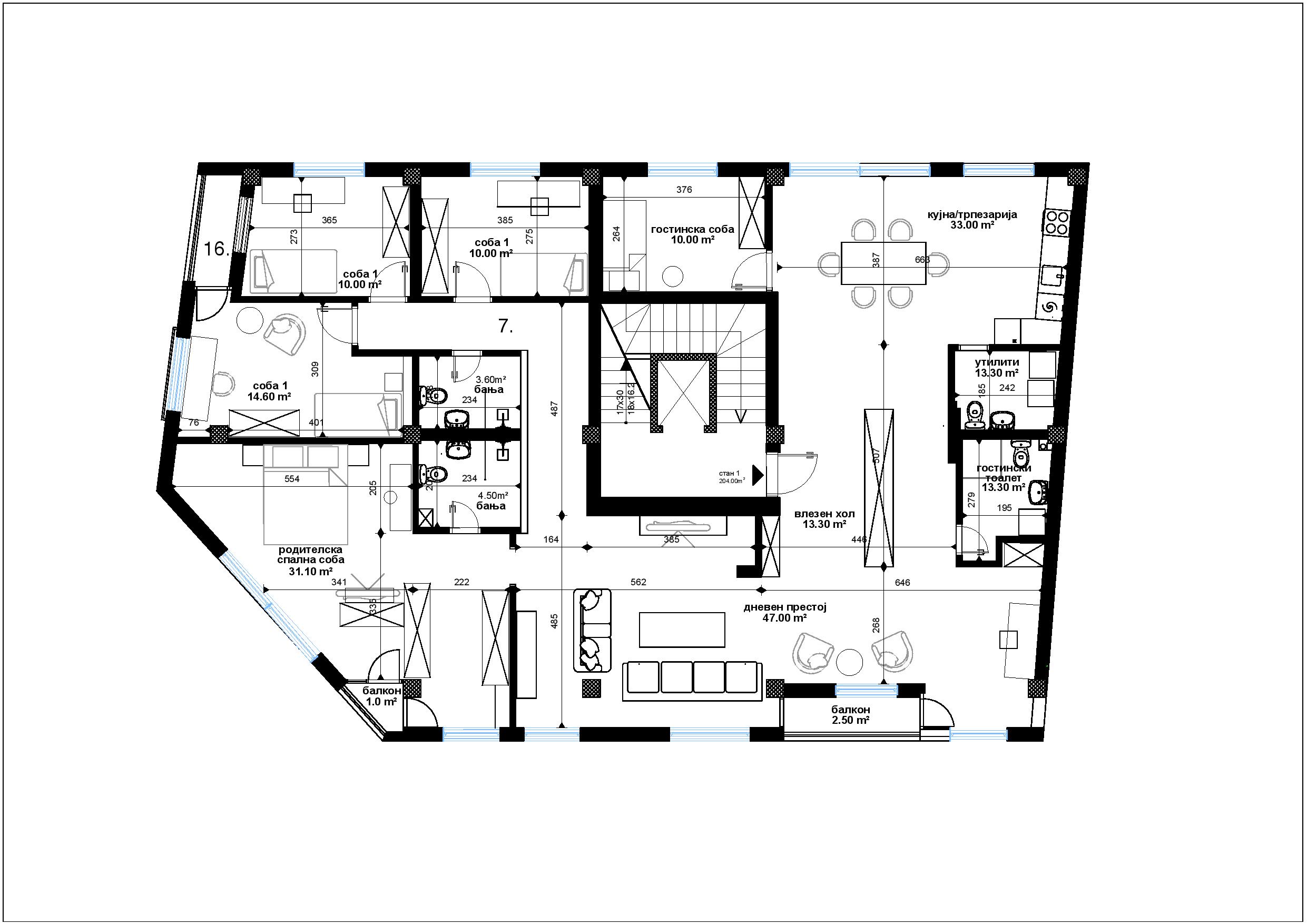
Стан бр 1 - Кат 1

204м2
Подетално
Најдобрите понуди

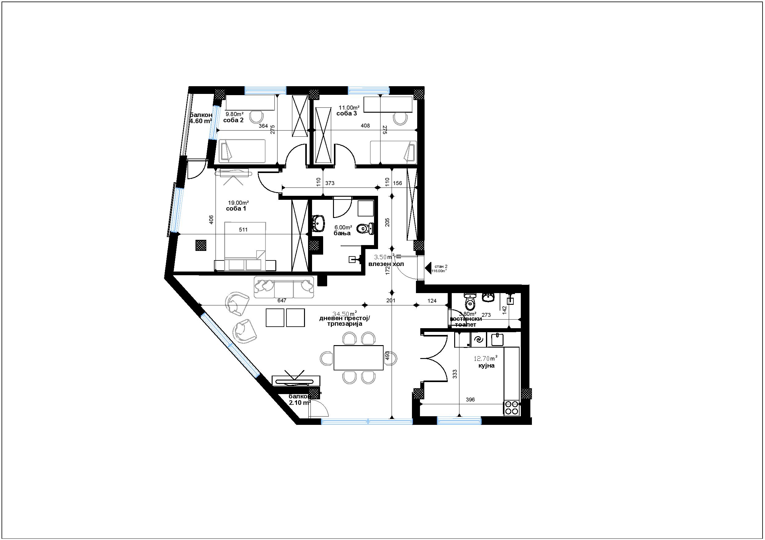
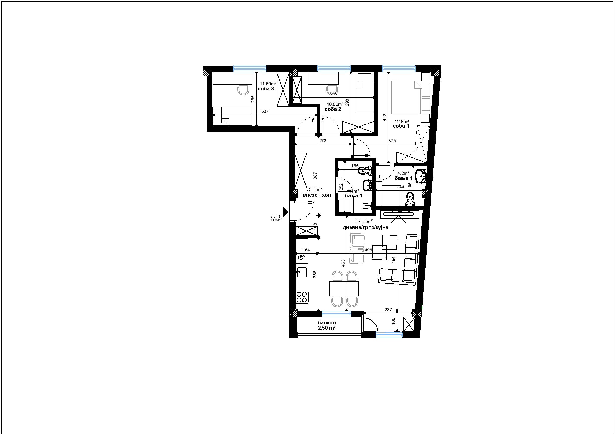
Стан бр 3 - Кат 2

84.5м2
Подетално

Избери го твојот стан

Површина
Tераса
Паркинг место

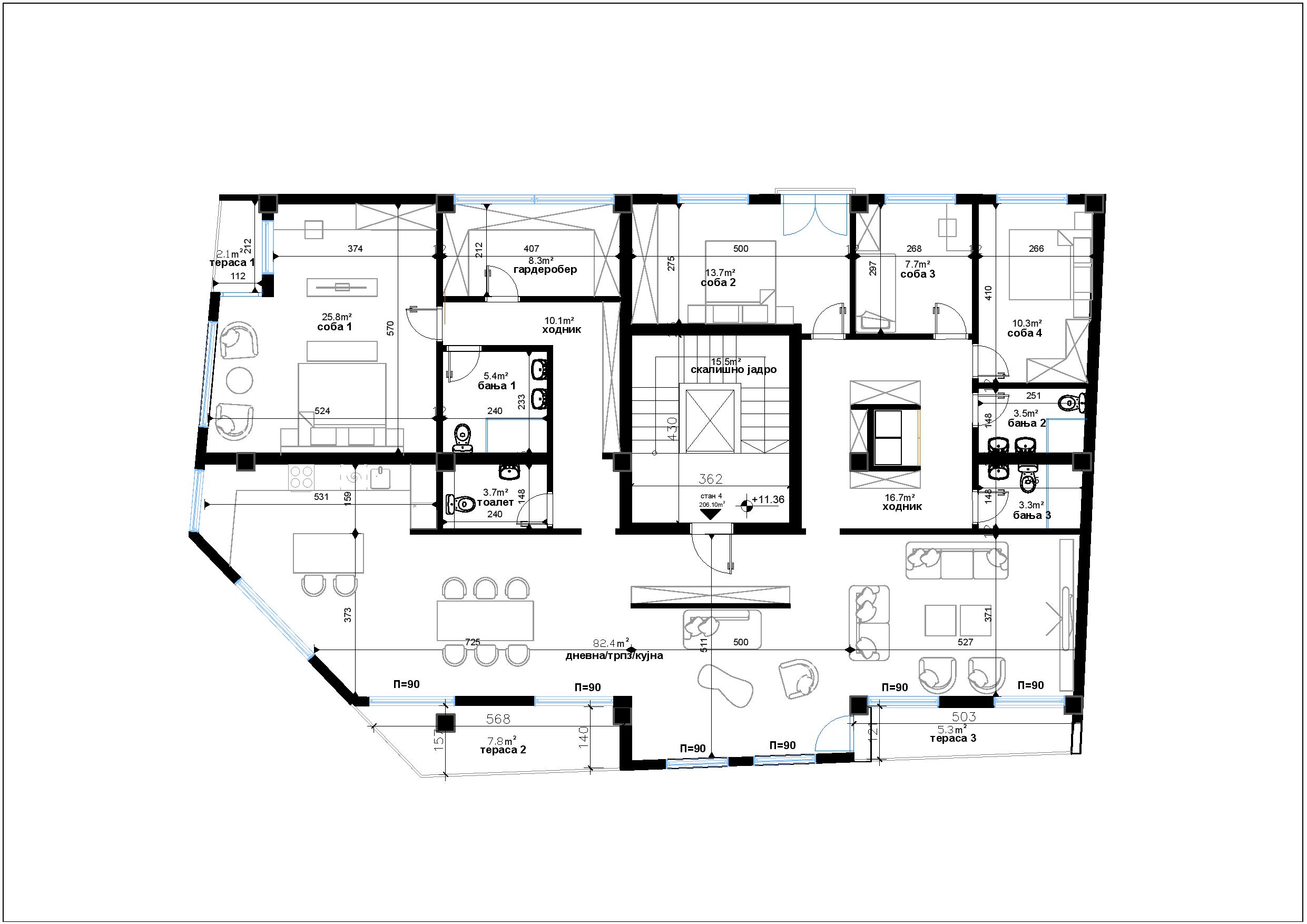
Стан бр 4 - Поткровје

206.21м2
Подетално

ИМПЛЕМЕНТИРАНИ ТЕХНОЛОГИИ И СМАРТ СИСТЕМИ

Високо енергетски ефикасен фасаден систем со голема заштеда на енергија и минимизирани трошоци за греење и ладење

  • Комплетна електрика од програмата LEGRAND
  • Висококвалитетна и стилски дизајнирана италијанска санитарија ROCA GROHE
  • Бесшумна водоводна инсталација со REHAU цевки и BRASS FORM вентили
  • Бесшумна одводна инсталација со REHAU цевки
  • Столарија со висока естетика и трослоен паркет од SPACHVA
  • Оптимизиран TOSHIBA систем за греење и ладење според норми за ЕЕ, со подни и зидни единици и смарт wifi можности, по избор на клиентите може и подно греење

ФУНКЦИОНАЛНИ ЕДИНИЦИ

Опфаќа 8 модерни станбени единици со различни структури, од четирисобни до петтособни.

Објектот Владимир Назор е базиран на интегриран систем на конструкција, функционалност, пространост и природна светлина, со цел оптимално користење на просторот, како и модерно живеење за станарите.

Поставен на четири нивоа:

Приземје како паркинг

Прв кат, втор кат и поткровје како станбен простор

Нуди функционални, ефикасни, енергетски ААА+ единици

Станбени единици од 84.50m2, 116m2, 204m2 И 206 m2

Проекти

Освен дизајнот на секоја фасада ги запазуваме и највисоките стандарди за енергетска ефикасност на самиот објект. Во секој објект се вградени изолациски материјали, комбинација од 20cm тврдопресован стиропор со 15cm графопор и најсофистицирани алуминиумски профили со трослојно стакло.

Секоја станбена единица е опремена со внимателно одбрани санитарии и плочки кои ги задоволуваат највисоките светски стандарди. Нашиот тим се грижи за функционалноста, одржливоста и естетиката во секоја единица. Дел од нашата програма се тоалет школки со soft close механизми, со rimless технологија, вградена туш батерија.

Контакт

Адреса

Владимир Назор
ул. Владимир Назор бр. 12
општина Центар
+ (389) 75 350-350

Социјални мрежи