GUERNICA

СТАНБЕНО-ДЕЛОВЕН ОБЈЕКТ

Проектот Guernica претставува современо станбено-деловен објект за квалитетно домување, лоциран во општина Центар, на ул. Антон Панов бр.1 Со својата архитектура, висока естетика и имплементирани технолошки решенија, ќе претставува модерен урбан белег. Објектот е сместен во мирна градска средина, а истовремено близу до институции од јавен карактер, трговски центри и јавен транспорт. Во непосредна близина се наоѓаат градинки, основни и средни училишта.

1. Фаза

Проектирање

Завршена

2. Фаза

Карабина

Завршена

3. Фаза

Завршни фази

Во процес

4. Фаза

Клуч на рака 2020

Понуда зграда GUERNICA

Избери го твојот стан

Површина
Tераса
Паркинг место

Стан бр 1

 
165м2
Подетално

Стан бр 3

 
165м2
Подетално

Избери го твојот деловен простор

Деловен простор бр 1

Подетално

ИМПЛЕМЕНТИРАНИ ТЕХНОЛОГИИ И СМАРТ СИСТЕМИ

Високо енергетски ефикасен фасаден систем со голема заштеда на енергија и минимизирани трошоци за греење и ладење

  • Комплетна електрика од програмата LEGRAND
  • Висококвалитетна и стилски дизајнирана италијанска санитарија ROCA GROHE.
  • Бесшумна водоводна инсталација со REHAU цевки и BRASS FORM вентили
  • Бесшумна одводна инсталација со REHAU цевки.

ИМПЛЕМЕНТИРАНИ ТЕХНОЛОГИИ И СМАРТ СИСТЕМИ

  • Столарија со висока естетика и трослоен паркет од SPACHVA.
  • Оптимизиран TOSHIBA систем за греење и ладење според норми за ЕЕ, со подни и зидни единици и смарт wifi можности, по избор на клиентите може и подно греење

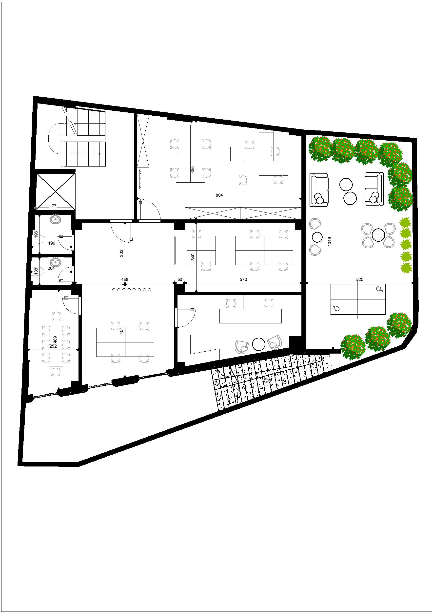
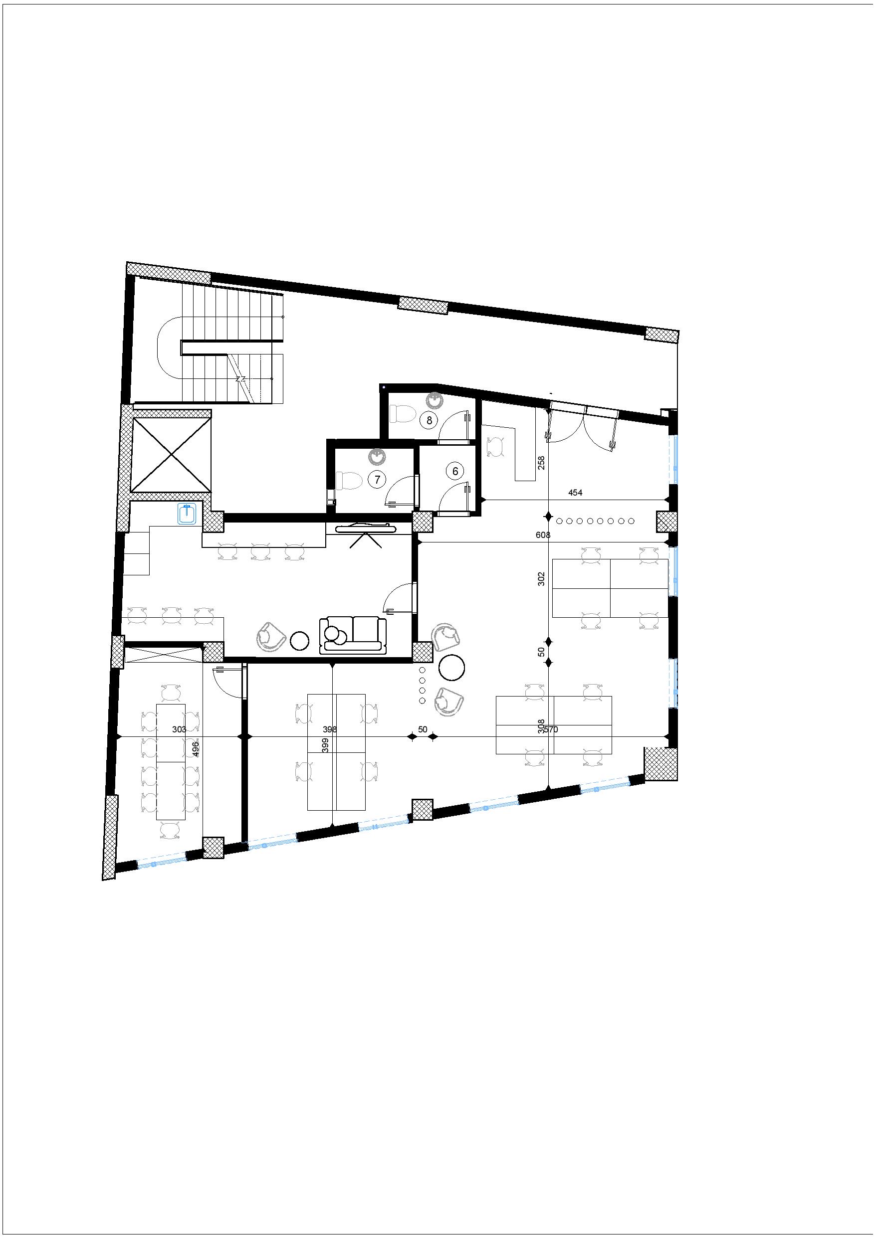
ФУНКЦИОНАЛНИ ЕДИНИЦИ

Објектот Guernica е базиран на интегриран систем на конструкција, функционалност, пространост и природна светлина, со цел оптимално користење на просторот, како и модерно живеење за станарите.

Поставен на пет нивоа:

Приземје и сутерен, како деловен простор

Три ката, како станбен простор со по една станбена единица на спрат

Нуди функционални, енергетски ефикасни единици ААА+ класа

Станбени единици од 50 m2, 70 m2, 90 m2, 115 m2

Деловен простор од 120 m2 приземје и 120 m2 сутерен со независен влез

Проекти

Освен дизајнот на секоја фасада ги запазуваме и највисоките стандарди за енергетска ефикасност на самиот објект. Во секој објект се вградени изолациски материјали, комбинација од 20cm тврдопресован стиропор со 15cm графопор и најсофистицирани алуминиумски профили со трослојно стакло.

Секоја станбена единица е опремена со внимателно одбрани санитарии и плочки кои ги задоволуваат највисоките светски стандарди. Нашиот тим се грижи за функционалноста, одржливоста и естетиката во секоја единица. Дел од нашата програма се тоалет школки со soft close механизми, со rimless технологија, вградена туш батерија.

Контакт

Адреса

Guernica
ул. Антон Панов бр.1
општина Центар
+ (389) 75 350-350

Социјални мрежи